Закладные детали трубчатого типа
Трубчатые закладные детали фундамента
Трубчатая закладная деталь – важный элемент, предназначенный для установки опор освещения, светофорных мачт и молниеотводов. Основой конструкции является труба с приваренным фланцем, которая бетонируется в грунт. Над поверхностью земли остаётся только верхний фланец, к которому крепятся опоры с помощью крепежных элементов. За счёт наличия фланца возможна многократная замена установленной опоры без повреждений самого фундамента.
Также существует альтернативный способ установки – прямостоечный, при котором опора вкладывается непосредственно в грунт и фиксируется цементным раствором. Однако после демонтажа такая опора не подлежит повторной установке.
Главное различие между этими методами монтажа заключается в том, что использование закладной детали упрощает процедуру установки и дальнейшего демонтажа, обеспечивая мобильность конструкции и удобство обслуживания.
Виды трубчатых закладных деталей
Использование трубчатых закладных деталей помогает упростить процесс монтажа и облегчить работу в тех ситуациях, когда сложность грунта или наличие подземных коммуникаций затрудняет установку опоры традиционным способом.
Закладные детали бывают разных типов:
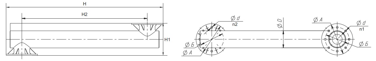
- Прямые: Представляют собой трубу с фланцем и подходят для стандартных установок опор освещения. Размеры и конфигурация фундамента выбираются исходя из особенностей грунта и планируемой нагрузки на опору.


ТЕХНИЧЕСКИЕ ПАРАМЕТРЫ
|
Наименование
|
Тип элемента
|
Масса*, кг
|
Размеры, мм | |||||
| D | H | A | Б | d | n | |||
| Закладные детали фундамента с квадратным фланецем | ||||||||
| ЗФ-20/4/К180-1,0 | К | 22,5 | 168 | 1000 | 224 | 180 | 20 | 4 |
| ЗФ-20/4/К180-1,5 | К | 48 | 168 | 1500 | 224 | 180 | 20 | 4 |
| ЗФ-30/4/230-0,45 | К | 40 | 219 | 450 | 320 | 230 | 30 | 4 |
| ЗФ-16/4/К140-1,0 | К | 12,2 | 108 | 1000 | 190 | 140 | 16 | 4 |
| ЗФ-20/4/К180-1,25 | К | 23,1 | 133 | 1250 | 250 | 180 | 20 | 4 |
| ЗФ-30/4/К230-1,5 | К | 33 | 133 | 1500 | 320 | 230 | 30 | 4 |
| ЗФ-30/4/К230-1,5 | К | 52 | 168 | 1500 | 320 | 230 | 30 | 4 |
| ЗФ-30/4/К300-2,0 | К | 68 | 159 | 2000 | 400 | 300 | 30 | 4 |
| ЗФ-16/4/К180-2,0 | К | 33 | 133 | 2000 | 250 | 180 | 16 | 4 |
| ЗФ-30/4/К300-2,5 | К | 80 | 159 | 2500 | 400 | 300 | 30 | 4 |
| ЗФ-30/4/К300-3,0 | К | 90,5 | 159 | 3000 | 400 | 300 | 30 | 4 |
| Закладные детали фундамента с круглым фланецем | ||||||||
| ЗФ-20/6/Д270-1,5 | Д | 52 | 168 | 1500 | 320 | 270 | 20 | 6 |
| ЗФ-24/8/Д350-2,5 | Д | 145 | 273 | 2500 | 420 | 350 | 24 | 8 |
| ЗФ-30/12/Д440-3,5 | Д | 275 | 325 | 3500 | 552 | 440 | 30 | 12 |
| ЗФ-24/8/Д310-2,0 | Д | 101 | 219 | 2000 | 400 | 310 | 24 | 8 |
| ЗФ-30/6/Д420-2,5 | Д | 157 | 273 | 2500 | 500 | 420 | 30 | 6 |
| ЗФ-30/12/Д440-3,0 | Д | 242 | 325 | 3000 | 552 | 440 | 30 | 12 |
| ЗФ-24/8/Д310-3,3 | Д | 155 | 219 | 3300 | 400 | 310 | 24 | 8 |
| ЗФ-20/12/Д372-4,0 | Д | 220 | 273 | 4000 | 420 | 372 | 20 | 12 |
| ЗФ-24/12/Д396-2,5 | Д | 187 | 325 | 2500 | 456 | 396 | 24 | 12 |
| ЗФ-24/8/Д360-2,5 | Д | 143 | 273 | 2500 | 420 | 360 | 24 | 8 |
| ЗФ-20/12/Д372-2,5 | Д | 142 | 273 | 2500 | 420 | 372 | 20 | 12 |
| ЗФ-30/8/Д440-2,5 | Д | 168 | 273 | 2500 | 540 | 440 | 30 | 8 |
| ЗФ-36/12/Д470-3,0 | Д | 310 | 377 | 3000 | 580 | 470 | 36 | 12 |
| ЗФ-36/12/Д540-3,0 | Д | 392 | 377 | 3000 | 670 | 540 | 36 | 12 |
| ЗФ-36/12/Д520-3,0 | Д | 340 | 377 | 3000 | 640 | 520 | 36 | 12 |
| ЗФ-36/12/Д560-3,0 | Д | 412 | 377 | 3000 | 690 | 560 | 36 | 12 |
| ЗФ-36/12/Д600-3,0 | Д | 392 | 377 | 3000 | 730 | 600 | 36 | 12 |
| ЗФ-36/12/Д620-3,5 | Д | 530 | 426 | 3500 | 730 | 620 | 36 | 12 |
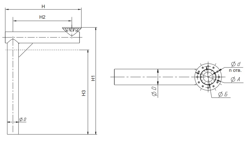
- Консольные: Применяются тогда, когда прямая установка осложнена инженерными коммуникациями или иными препятствиями. Закладная деталь имеет выступающую площадку, позволяющую разместить опору на расстоянии от исходного центра.


- Выносные: Используются в тех случаях, когда невозможно расположить закладную деталь непосредственно под местом установки опоры. Имеют Г-образную форму, обеспечивая устойчивость и безопасность конструкции.


ТЕХГНИЧЕСКИЕ ПАРАМЕТРЫ
|
Наименование
|
Масса*, кг
|
Размеры, мм | ||||||||
| H | H1 | H2 | H3 | D | d | n | А | Б | ||
| В-20/8/Д360-1,4-б | 220 | 1798 | 3049 | 1400 | 2500 | 219 | М20 | 8 | 420 | 360 |
| В-20/8/Д360-1,7-б | 233 | 2098 | 3049 | 1700 | 2500 | 219 | М20 | 8 | 420 | 360 |
| В-20/8/Д360-2,0-б | 245 | 2398 | 3049 | 2000 | 2500 | 219 | М20 | 8 | 420 | 360 |
| В-20/12/Д372-1,4-б | 324 | 1798 | 3093 | 1400 | 2500 | 273 | М20 | 8 | 420 | 372 |
| В-20/12/Д372-1,7-б | 343 | 2098 | 3093 | 1700 | 2500 | 273 | М20 | 8 | 420 | 372 |
| В-20/12/Д372-2,0-б | 363 | 2398 | 3093 | 2000 | 2500 | 273 | М20 | 8 | 420 | 372 |
| В-24/8/Д310-1,4-б | 220 | 1788 | 3049 | 1400 | 2500 | 219 | М24 | 8 | 400 | 310 |
| В-24/8/Д310-1,7-б | 232 | 2088 | 3049 | 1700 | 2500 | 219 | М24 | 8 | 400 | 310 |
| В-24/8/Д310-2,0-б | 245 | 2388 | 3049 | 2000 | 2500 | 219 | М24 | 8 | 400 | 310 |
| В-30/8/Д380-1,4-б | 338 | 1838 | 3103 | 1400 | 2500 | 273 | М30 | 8 | 500 | 380 |
| В-30/8/Д380-1,7-б | 357 | 2138 | 3103 | 1700 | 2500 | 273 | М30 | 8 | 500 | 380 |
| В-30/8/Д380-2,0-б | 377 | 2438 | 3103 | 2000 | 2500 | 273 | М30 | 8 | 500 | 380 |
| В-30/12/Д440-1,4-б | 374 | 1898 | 3650 | 1400 | 3000 | 325 | М30 | 12 | 550 | 440 |
| В-30/12/Д440-1,7-б | 393 | 2198 | 3650 | 1700 | 3000 | 325 | М30 | 12 | 550 | 440 |
| В-30/12/Д440-2,0-б | 412 | 2498 | 3650 | 2000 | 3000 | 325 | М30 | 12 | 550 | 440 |
Производство трубчатых закладных деталей
Трубчатые закладные детали изготавливают из стального проката, служащего для соединения опоры с фундаментом. Труба с приваренными отверстиями и фланцем обеспечивает необходимую прочность и надёжность конструкции.
Размеры и форма фундамента подбираются индивидуально, исходя из требований к глубине заделки и необходимого диаметра фланца. Согласно типу нагрузки, закладные детали могут иметь квадратный или круглый фланец с разным числом отверстий.
Покрытие трубчатых закладных деталей
Все выпускаемые закладные детали защищают от коррозии в соответствии с действующими строительными нормами и правилами. Стандартное покрытие представляет собой слой битумной мастики или грунт-эмали. Дополнительно по просьбе заказчика закладные детали могут подвергнуться процессу горячего цинкования, что продлит срок их службы до 50 лет и обеспечит повышенную антикоррозийную защиту.
Монтаж трубчатых закладных деталей
В отличие от прямостоечных опор, трубчатые закладные детали позволяют быстро заменить установленную опору без нарушения целостности фундамента. Для монтажа используются крепежные элементы, входящие в комплект поставки.
Заключение
Компания НТЦ «АконсТранс Технологии» предлагает клиентам как готовые трубчатые закладные детали, так и изготовление индивидуальных решений по заданным параметрам. Мы осуществляем доставку по всей России и предоставляем продукцию с полной комплектацией сертификатов и паспортов качества.
